Prodej RD Čáslavice, okres Třebíč (Rezervováno)
Popis nemovitosti
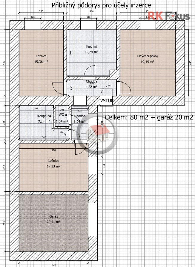
Hledáte klidné rodinné bydlení s dobrou dostupností služeb? Nabízíme k prodeji rodinný dům o dispozici 3+1 v obci Čáslavice, okres Třebíč, ideální pro rodinu i pohodové bydlení na venkově. Dům je postaven ze smíšeného zdiva a v průběhu let prošel důležitými úpravami. V roce 2008 byla vyměněna střešní krytina, za krytinu Bramac, dům byl zateplen, odizolován a má plně pochozí půdu zaizolovanou foukanou pěnou. O vytápění se od roku 2015 stará plynový kotel s rozvody do radiátorů, atmosféru domova navíc podtrhuje možnost přitápění kamny v obývacím pokoji i kuchyni. Součástí nemovitosti je garáž o výměře 20 m² a pozemek o velikosti 263 m², který nabízí příjemné soukromí pro odpočinek či posezení. Dům je napojen na všechny inženýrské sítě a k dispozici je také studna s užitkovou vodou, společná se sousedem. Obec Čáslavice poskytuje veškerou základní občanskou vybavenost – základní i mateřskou školu, poštu, prodejnu smíšeného zboží, dětské hřiště a další. K nastěhování od 02/2026. Pokud hledáte dům s potenciálem, klidnou atmosférou a zázemím pro rodinný život, tato nabídka by mohla být pro Vás tou správnou volbou.
Základní informace
| KÓD: | N1304 |
| Cena | 4 500 000 Kč za nemovitost |
| včetně provize RK | |
| Adresa | Čáslavice, Podobné nabídky v této lokalitě |
| Poloha objektu | Rohový |
| Dispozice domu | 3+1 |
| Druh stavby | Smíšená |
| Zastavěná plocha | 133 |
| Celková plocha | 396 |
| Užitná plocha | 100 |
| Stav objektu | Velmi dobrý |
| Plocha pozemku/ů | 263 |
| Typ domu | Přízemní |
| Počet podlaží | 1 |
| Užitná plocha v přízemí | 80 |
| Rok rekonstrukce | 2010 |
| K dispozici od | 2026-02-01 |
| Umístění objektu | Klidná část obce |
| Komunikace | Asfaltová |
| Plocha zahrady | 161 |
| Popis vybavení | Po domluvě s prodávajícím |
| Obytná plocha celkem | 80 |
| PENB: Náročnost budovy | G - průkaz nedodán |
| Další nebytové prostory | Garáž |
| Telekomunikace | Internet |
| Inženýrské sítě | Elektřina, Vodovod, Kanalizace, Plyn |
| Topení | Lokální: tuhá paliva, Ústřední plynové |
| Doprava | Autobus, Silnice |
| Elektřina | 230V, 400V |
| Voda | Dálkový vodovod |
| Odpad, kanalizace | Veřejná kanalizace |
| Plyn | Plynovod |
| Vybavenost | Škola, Školka, Pošta, Supermarket |
Umístění nemovitosti
|
|
Michal GALBAVÝ Jednatel společnosti |
|
| 776 05 04 03 info@rkfokus.cz |
|
| Všechny nabídky makléře | |


















